1221 VAN STREET SE

Location  |  Washington, DC

Completed  |  2019

Size  | 23,727 SF (Retail)

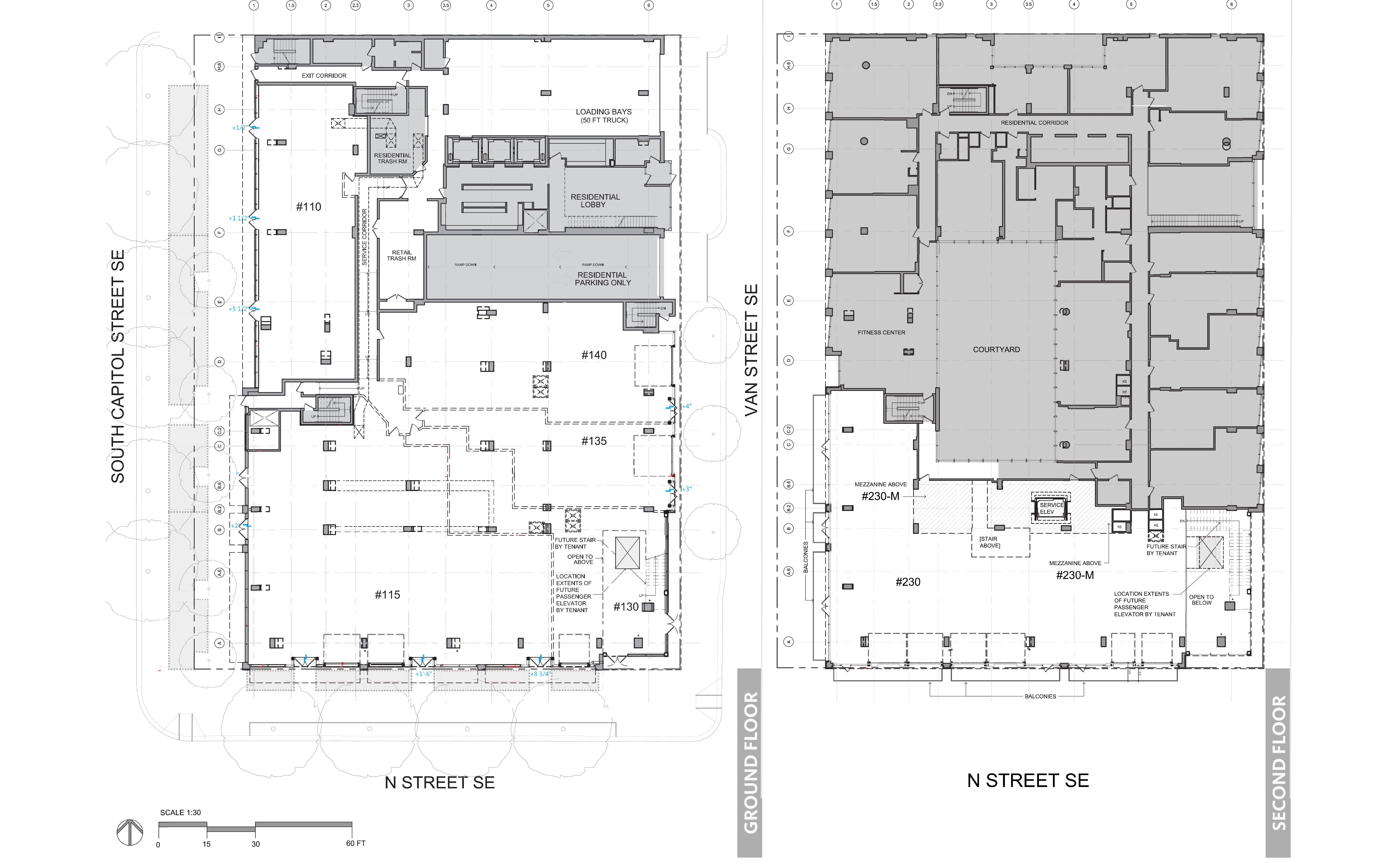
Overlooking Nationals Park in Washington, DC, West Half features 465 luxury residential units, ground and second floor retail space and three stories of below grade parking.  The building’s striking profile responds to both solar orientation and views of Nationals Park immediately to the South.  Because no two floors are alike, the project presented unique and challenging conditions for the retail infrastructure and venting strategy.  A substantial portion of the retail façade was designed with curbless operable façade to take full advantage of the curbless street condition, which converts to a pedestrian only promenade during game days.  The seamless transition from interior to exterior at the retail level allows venues to spill out into the street and contribute to the energy of the place.

 

Nahra served as the Retail Architect for the building, working with the design and development teams from the schematic design phase through lease up.  Nahra advised on the configuration of retail infrastructure, logistics, storefront design, ground plane placemaking and other aspects of the base building configuration to be considered when delivering high-value retail space in a complex mixed-use building in an entertainment district.  In parallel with these advisory services, Nahra served as Architect of Record for the two-level retail façade design, including 11 operable façade sections which open the retail space up to the energy of the ballpark on game days.    Additionally, Nahra supported the retail leasing efforts with key tenant test fits, retail design guidelines,  demising studies, lease plans and other collateral.

Design Architect: Hariri Pontarini Architects

Architect of Record: Eric Colbert & Associates