500 MORSE STREET

Location  |  Washington, DC

Completed  |  2023

Size  | 20,200 SF (Retail)

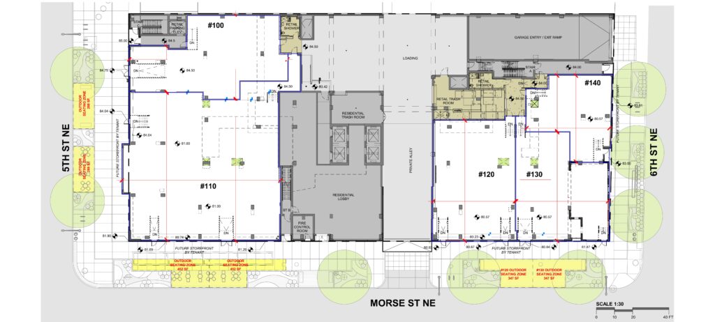
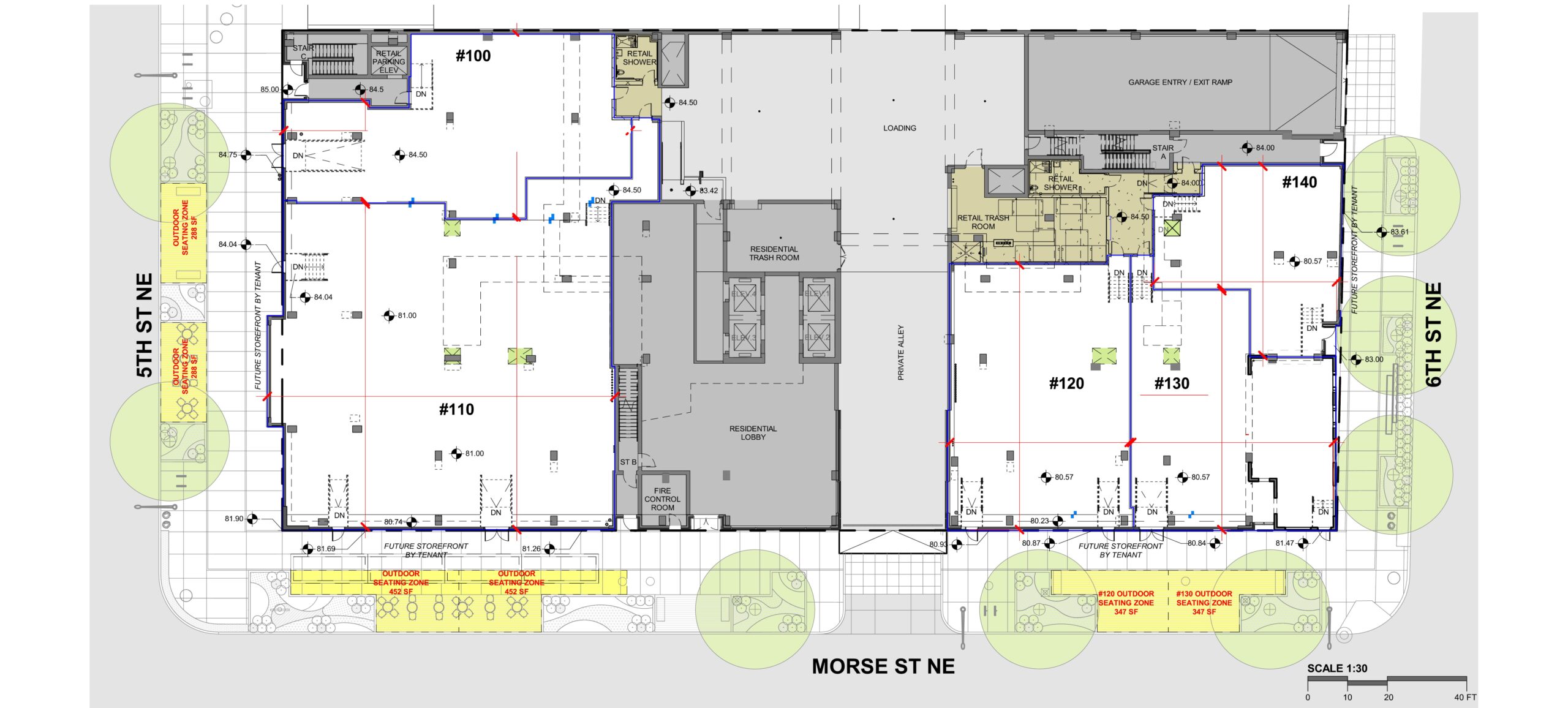
500 Morse is a residential building with ground level retail, located in the iconic Union Market neighborhood adjacent to Gallaudet University in Washington DC.  The site was previously home to DC’s first Little Tavern, a historic landmark which was retained as part of the retail lease space.

 

Nahra served as the Retail Architect for the building, working with the design and development teams from the design development phase through lease up.  Nahra advised on the configuration of retail infrastructure, logistics, storefront design, ground plane placemaking and other aspects of the base building configuration to be considered when delivering high-value retail space in a complex mixed-use building.  In parallel with these advisory services, Nahra served as Architect of Record for the retail back of house and demising infrastructure.  Additionally, Nahra supported the retail leasing efforts with key tenant test fits, tenant design review,  demising studies, lease plans and other collateral.

Architect of Record: SK+I