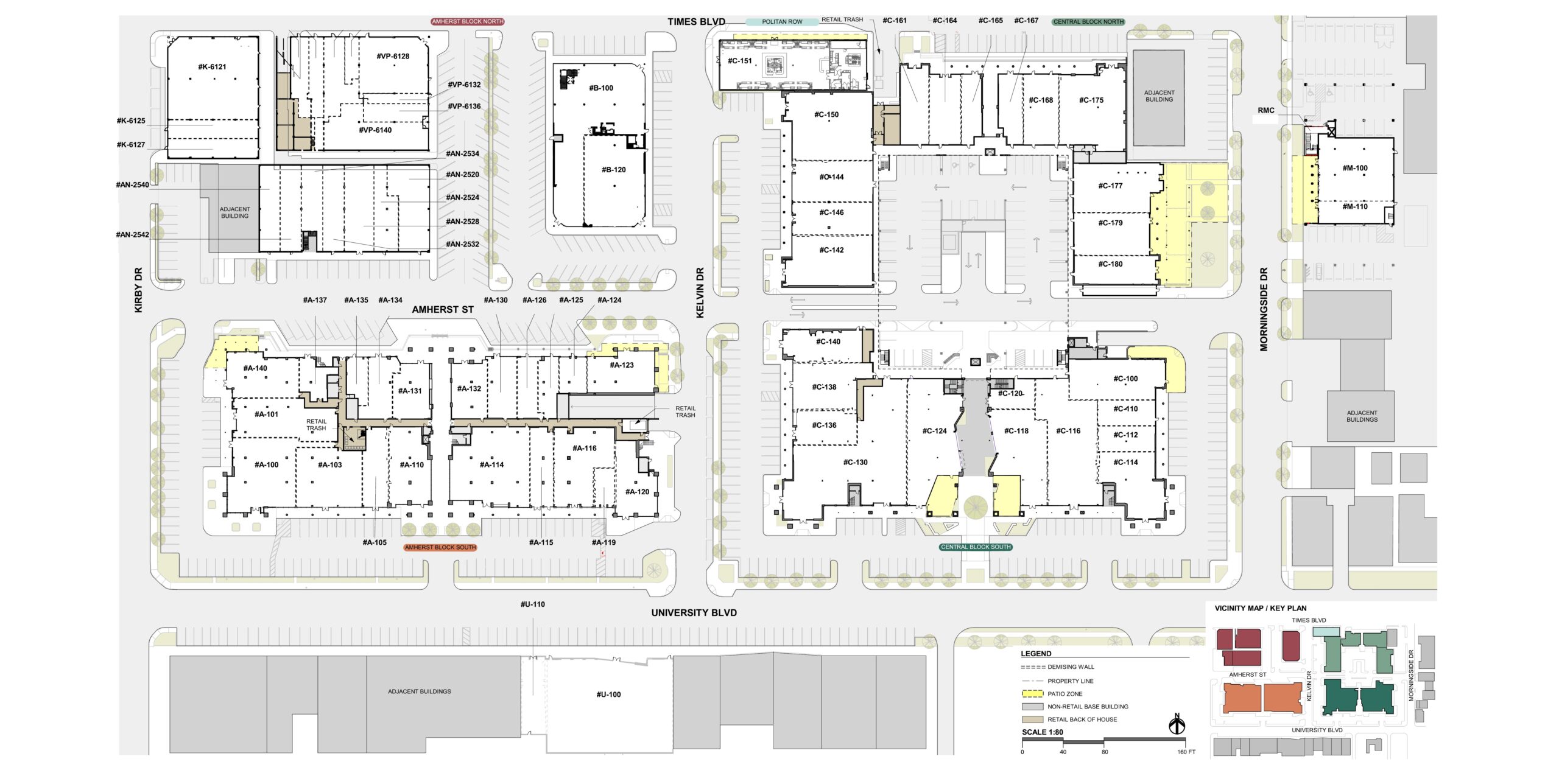
RICE VILLAGE

Location  |  Houston, TX

Completed  |  2024

Size  | 242,184 SF

Rice Village in Houston, TX is a premier 16-block shopping, dining and professional district located directly West of Rice University.  Composed of one- and two-story retail buildings of varying ages and styles, it is known for its mix of high-end national retailers, local boutiques and diverse eateries.  It is currently undergoing a multi-year transformation to increase density, walkability and connectivity.

 

As part of an early (predevelopment) repositioning effort to the central four commercial blocks, Nahra served as the Owner’s Retail Architect, working with numerous local and national consultants to complete the vision.   Nahra advised on the configuration of retail infrastructure, repositioning design of the existing architecture, logistics and storefront design.  Additionally, Nahra supported the retail leasing efforts with key tenant test fits / visioning, retail design guidelines, demising studies, master lease plans and other collateral.